Elegante Erdgeschoss-Maisonette-Wohnung mit Gartenanteilen in Sasel – bezugsfertig
Wohnen am Waldweg in Sasel - in einem Neubau, der nun bezugsfertig ist: Diese helle Maisonette-Wohnung wird Sie auf allen Ebenen überzeugen - durch ein zeitgemäßes und modernes Gebäude-Konzept und einen individuellen Schnitt.
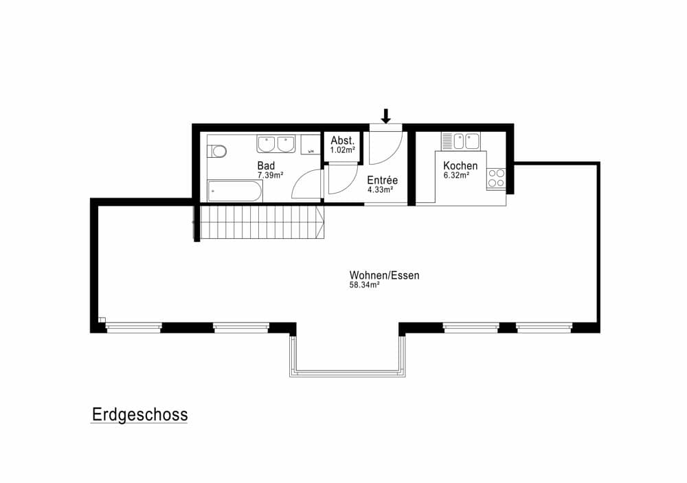
Helle Farben, Vollholzparkett und unaufdringliche Eleganz prägen das innere und äußere Erscheinungsbild des Gebäudes. Das Herz der Wohnung bildet zweifelsfrei der sonnige, gegliederte und offene Wohn-Essbereich mit zahlreichen bodentiefen Fenstern (und einer Fläche von ca. 58,34 qm). Vom Entree der Wohnung mit ca. 4,33 qm geht ein Hauswirtschaftsraum ab, das Badezimmer liegt hier auch. Die für die Küche vorgesehene Fläche beträgt ca. 6,32 qm.
Eine Treppe führt hinunter in das Gartengeschoss mit den 3 Zimmern und einem großen Abstell-Kellerraum, sowie den Flur der auf den Austritt zur zweiten Gartenfläche führt. Im Gartengeschoss ist das Gäste-WC gelegen.
Die zu dieser Wohnung gehörenden Außenbereiche mit Terrasse unterstreichen das herrliche Wohlgefühl auf insgesamt ca. 179 qm. Ein Tiefgaragen-Stellplatz kann zu dieser Wohnung mit erworben werden.
-
€ 995.000Kaufpreis
-
1Badezimmer
-
162,41 m²Wohnfläche
-
2023Baujahr
-
Immo-ID: 2527
Diese Wohnung überzeugt mit durchdachten Details und einem hohen Anspruch an Qualität und Wohnkomfort. Die moderne Ausstattung verbindet ansprechendes Design mit hochwertiger Verarbeitung und besten Materialien. Mit ausgesuchten Qualitätsprodukten namhafter Hersteller bestimmen Sie die Details Ihrer Wohnungsausstattung selbst - vom Türgriff bis hin zum Fußbodenbelag.
•3-fach lsolierverglasung
•elektrische Rollläden
•einflügelige Aluminiumeingangstür mit Sicherheitsschloss (3-fach verriegelt)
•hochwertige Ausstattung mit Sanitärobjekten und Armaturen namhafter Hersteller
• Heizungskonzept: Luft-Wasser-Wärmepumpe und Photovoltaik
•Hochwertige Fliesenbeläge in Bädern und WCs
•Handtuchheizkörper
•Echtholzparkett
Sasel ist ein beliebter Stadtteil, in dem mit einer Gesamtbevölkerung von ca. 23.500 Einwohnern viele Familien mit Kindern und Senioren leben. Die Kleinstadtidylle und die weiträumig umgebende Natur vereinen sich zu einem Ruhepol. Die Saselbek und die Alster laden mit dem Naturschutzgebiet Hainesch-lland und anderen Grünanlagen zu erholsamen Land- und Wasserwanderungen ein. Besonders attraktiv ist das Gebiet auch zum Fahrradfahren, Joggen oder für den Wassersport.
Trotz der behaglich ruhigen Lage im Bezirk Wandsbek, im Regionalbereich Alstertal, sind die Innenstadt Hamburgs, der Flughafen und die Autobahn nur wenige Minuten entfernt. Die nächstgelegenen S-Bahn-Anschlüsse befinden sich in Poppenbüttel und Wellingsbüttel und sind bequem mit dem Bus zu erreichen.
Kurze Wege zu den wichtigsten Stationen des Alltags, wie z.B. dem Saseler Markt oder dem Saseler Park prägen das Wohnen im Waldweg. Die Umgebung des attraktiven Neubauobjekts kombiniert urbanes Leben mit familienfreundlicher Atmosphäre. Nach der Arbeit noch zur Erholung an den Alsterlauf oder zum Shoppen ins Alstertal Einkaufszentrum - wohnen im Waldweg bedeutet Komfort.
-
Baujahr lt. Energieausweis 2022
-
Energieausweis Bedarfsausweis
-
gültig bis 19.08.2024
-
Primärenergieträger Luft/Wasser Wärmepumpe
-
Endenergiebedarf 18,30 kWh/(m²·a)
-
Energieeffizienzklasse A+
Irrtum und Zwischenverkauf vorbehalten.
Hinweis
Alle Angaben sind ohne Gewähr und basieren ausschließlich auf Informationen, die uns von unserem Auftraggeber übermittelt wurden. Wir übernehmen keine Gewähr für die Vollständigkeit, Richtigkeit und Aktualität dieser Angaben.
Geldwäsche
Ein Makler ist nach dem aktuell geltenden Geldwäschegesetz verpflichtet die Identität seines Kunden festzustellen. Dazu muss sich der Makler den Personalausweis des Kunden zeigen lassen und die Daten vom Ausweis schriftlich festhalten. Die Daten werden nicht an Dritte weitergegeben und vertraulich behandelt. Die Pflichten sind vor dem mündlich oder schriftlich abgeschlossenen Maklervertrag zu erfüllen. Spätestens jedoch, wenn es das erste Mal zu einem Zusammentreffen zwischen Makler und Kunden kommt, z. B. bei einer Besichtigung. Dies gilt in der Regel nur bei Veräußerungsgeschäften. Das Geldwäschegesetz greift nicht bei der Wohnungsvermietung.
-
PLZ
22393
-
Stadt
Hamburg / Sasel

- Tanja Aumann
- 00491738942508
- tanja.aumann@hir.immobilien




















